Villa Mattina
Terni-San Gemini-Umbria

Nestled in the tranquility and charm of a historic village, this stately manor offers rare privacy and a deep connection to Umbrian traditions. Spacious rooms with soaring ceilings and exquisite period details create an ambiance of history and nobility. The private garden, conveniently located in the heart of the historic center, invites moments of serenity or the opportunity to envision bespoke enhancements, such as a pool that further elevates this exceptional property. Proximity to amenities and a panoramic terrace allow you to experience daily living with elegance and ease, set against a backdrop where time flows with a gentle, precious rhythm.

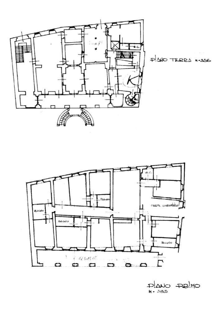
This magnificent palace, located in the heart of San Gemini, welcomes you with a rich history spanning centuries. Meticulously restored in the 1980s to preserve its original charm, the property unfolds over five floors, offering more than 4,200 square meters of expansive, light-filled spaces characterized by high ceilings and generously sized rooms. A rare feature for a historic center, the majestic private garden provides an oasis of tranquility and privacy, a genuine sanctuary just steps away from the town’s amenities.

The grand entrance faces a historic square, with its cobblestone streets and the enchanting ambiance typical of an Umbrian village. The main structure is arranged around an internal courtyard, complemented by a panoramic terrace offering breathtaking views of the rolling Umbrian hills. The outstanding quality of this historic building is evident in its architectural details and exposed-beam ceilings, while the interiors invite a multitude of possibilities—from a prestigious private residence to an elegant boutique accommodation.

Inside, the rooms are defined by their thoughtful layout and functionality, featuring five lounges ideal for hosting guests or relaxing, and two study rooms perfect for working in a uniquely inspiring setting. Although rich in historical character, the palace offers a solid foundation for creating modern, functional spaces. Expansive, livable terraces further enhance the property’s appeal, providing perfect areas to enjoy the mild climate and stunning vistas.

Strategically positioned near Umbria’s historic landmarks and easily accessible from airports and highways, this residence is an exceptional choice for those seeking an exclusive retreat or aiming to develop high-end hospitality ventures. Convenient parking nearby adds to the practicality of this grand estate, blending timeless elegance, rich history, and serene living into a remarkable property offering an unparalleled residential experience.


State of repair

Historic 17th-century palace, meticulously restored in the 1980s with great attention to preserving its original features and using premium materials, creating a refined and inviting atmosphere throughout. The high-quality interior finishes blend harmoniously with the original structures, enhancing every detail. Spacious and well-proportioned rooms offer flexible living spaces easily adaptable to your daily lifestyle, while the numerous, thoughtfully designed bathrooms and kitchens provide both comfort and practicality. Wooden windows and doors contribute to a warm, luminous environment, maintaining timeless classical elegance. Terracotta floors and plastered walls painted in understated tones reflect the palace’s rich history, preserving its authenticity. The foundations and roof have been carefully maintained to ensure stability and security for years to come. The garden serves as a peaceful and private oasis, ideal for moments of relaxation and social gatherings. The exceptional quality of the interiors combined with the distinctive character of this historic residence offers a unique living experience where tradition and modern functionality seamlessly converge.


Utilities

The building is equipped with essential utilities such as water, electricity, and gas, providing a functional foundation for any residential need. Although the systems date back over thirty years, they offer a solid framework for future customization. The traditional heating system ensures a comfortable climate, while the absence of air conditioning presents an opportunity to install modern, tailor-made solutions. The water supply and sewer networks, also historic, enable efficient resource management. The electrical connection is active and functional, though it requires upgrades to meet contemporary standards. The property offers ample scope for the integration of modern systems. This setting is perfectly poised to embrace innovative ideas and transform into a unique space that meets your expectations for functionality and personalized living.


Use and Potential Uses

This castle, with its strong historical identity and the privacy it offers, welcomes you to the heart of San Gemini. The spacious interiors and private garden present exceptional opportunities to transform it into an elegant boutique hotel or a distinguished historic residence for authentic living experiences. The panoramic terraces enhance the stunning surrounding landscape, providing a tranquil and refined retreat. Here, every vision can be realized, from a private residence to a charming hospitality venture, showcasing a unique historical heritage in Umbria.


Land registry details

The Great Estate group conducts a technical due diligence on every property acquired, through the technician of the selling client, which allows us to thoroughly understand the urban and cadastral situation of each property. This due diligence can be requested by the client at the time of genuine interest in the property.


Ownership details and eventual contractual obligations

The property is registered to an individual.


Location

The property is nestled in the historic heart of San Gemini, amidst the rolling Umbrian hills that define the province of Terni. Here, you can enjoy the tranquility and privacy of a serene location, away from urban hustle, yet less than a kilometer from major road and rail connections, with Rome just under 100 km away. The setting offers panoramic views over the gentle Umbrian countryside, making it an ideal haven for those seeking a perfect balance between peace, nature, and proximity to the artistic gems of Umbria, such as Spoleto and Narni, both easily accessible within a short drive.

 Back to Results
Contact a Broker
 

Property’s details

Price: €2,400,000

Type: Castles and Villages

Land: 9,053 m2 / 97,445.68 sqft

Bedrooms: 24

Bathrooms: 16

Kitchen: 3

Living Rooms: 5

Studio: 2

Year of construction: 600

Year of the last renovation: 1980

Condition: Restored

Energy class: Indice di prestazione energetica in attesa di classificazione


Surfaces data

Commercial surface : 4,204 m2 / 45,251.48 sqft

Some fields I can't find in api

Lifestyle


Distances

km


External features


Interior features

Plans

Team Image

MeetThe Team

The Park27 team is ready to help. With deep local knowledge, and unmatched real estate experience, we'll work with you to find the property that matches your unique needs.

Learn More

Access OurCloud System

Access the cloud

Visit OurCareer Site

Access the Career Page