Villa Bagnolo
Perugia-Castiglione del Lago-Umbria

This superb, newly constructed villa (energy class A++++) offers a unique opportunity for those who wish to live in a peaceful and sophisticated environment. This home, featuring large windows, lights up with natural light and opens onto a large private garden, perfect for relaxation and entertaining. The strategic position allows you to enjoy the tranquillity of the countryside, while living at a short distance from the services and recreational activities of the area. Here, every day turns into a memorable experience, immersed in the beauty of Umbria and the liveliness of the area around Lake Trasimeno.

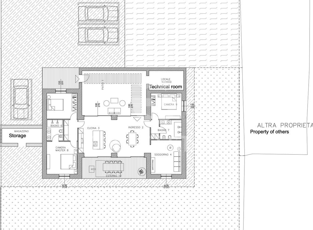
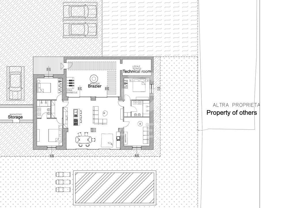
This fabulous property – arranged on a single level and with a gross living area of approximately 162 sqm – offers bright, spacious, and perfectly balanced rooms, merging comfort, functionality, and privacy. Access to the villa is via an elegant automatic wrought iron gate, which opens onto a road shared with another single-family residence. Following the illuminated avenue, you reach the private parking area, which can accommodate up to five cars. From here, a charming patio, inspired by the refined courtyards of eighteenth-century Tuscan villas, welcomes guests in an ambiance of serenity and conviviality, perfect for spending pleasant days in company. The patio harmoniously connects to the living area, accessible via four large glass doors that create a wonderful effect of continuity between the inside and the outside. The feeling of total fusion with natural light and open space makes this part of the house particularly fascinating. Inside, the living area features a splendid kitchen with an island and a spacious dining area, which extends towards a terrace equipped with a large table and a BBQ, ideal for outdoor dinners and barbecues with friends. Soon, this outdoor area will be further enhanced by an elegant porch, which will expand the living space. The kitchen-dining room leads to a large area used as a TV room, with direct access to the garden, perfect for relaxing in total tranquillity. Two corridors, embellished with elegant built-in wardrobes, lead to the sleeping area, consisting of three bedrooms, one with an en-suite bathroom, and a second bathroom that serves both the living area and the other two bedrooms. The large windows provide excellent natural lighting, thanks also to the southern exposure, guaranteeing a warm and welcoming ambiance. The private garden (approx. 750 sqm) is completely fenced and equipped with an irrigation system, offering the possibility of relaxing get-togethers with friends and family. The property is completed by two more rooms, each of about 10 sqm: one is intended as a technical room with access from the open patio and the other room is used as a laundry, ironing room, and storage room.


State of repair

The exterior of the villa features a contemporary design, characterized by clean and elegant lines. The outdoor spaces are well-kept and are suitable for outdoor relaxation, making this home an ideal place to enjoy tranquillity. The high-quality finishes and attention to detail are evident in every room. The systems for electricity, heating, cooling, and water supply ensure optimal living comfort and low running costs. The spaces are designed with a functional layout, offering perfect integration between the living area and the sleeping area.


Utilities

The property is in perfect working order, allowing great energy savings as a Class A++++ house, which is the best possible energy class. A photovoltaic system of approx. 3 kw and 5 kw batteries guarantees self-production of electricity which significantly reduces the management costs of the property. Heating and cooling are in fact guaranteed by a heat pump and split units for each area, all controllable individually in order to achieve different temperatures depending on needs. The kitchen is induction and therefore the house has no connection to gas – methane. The water supply is guaranteed by the connection to the public aqueduct, while the irrigation of the garden is guaranteed by an underground cistern that is filled by two water induction systems deriving from two wells present on the property. Furthermore, all rainwater flows into the cistern and the public aqueduct is also connected to the cistern for additional water security.


Use and Potential Uses

A splendid property perfect for those who love life surrounded by nature yet wish to live in a new construction that is absolutely innovative and ready to move in with maximum comfort. Perfect both as a main residence and as a holiday home, as it is an ideal starting point to visit the most beautiful areas and cities rich in art and history of Umbria and Tuscany. There is also the possibility to build a private swimming pool.


Land registry details

For each property offered, the Great Estate group conducts – via the seller’s technician – a technical due diligence. This allows us to know in detail the urbanistic planning and cadastral circumstances of each property. This due diligence may be requested by the client at the time of a real interest in the property.


Ownership details and eventual contractual obligations

The property is registered to a natural person/s and the sale will be subject to registration tax in accordance with current regulations (see costs of purchasing from a private individual).


Location

The property is located in the municipality of Castiglione del Lago; the distance from the main services is less than 1 km. Distance from the main airports: Perugia 30 km, Ancona 155 km, Florence 135 km, Rome 200 km.

 Back to Results
Contact a Broker
 

Property’s details

Price: €485,000

Type: Luxury Villas

Land: 750 m2 / 8,072.93 sqft

Bedrooms: 3

Bathrooms: 2

Kitchen: 1

Living Rooms: 1

Studio: 0

Year of construction: 2023

Year of the last renovation: 2024

Condition: Restored

Energy class: A


Surfaces data

Commercial surface : 237 m2 / 2,551.05 sqft

Some fields I can't find in api

Lifestyle


Distances

km


External features


Interior features

Plans

Team Image

MeetThe Team

The Park27 team is ready to help. With deep local knowledge, and unmatched real estate experience, we'll work with you to find the property that matches your unique needs.

Learn More

Access OurCloud System

Access the cloud

Visit OurCareer Site

Access the Career Page